Flexible building study (NL)
Feasibility study for a flexible building
Estudio de viabilidad para un edificio flexible
project info / información del proyecto:
comission / encargo:
Feasibility study / Estudio arquitectónico
location / situación: Sluisbuurt Masterplan Amsterdam. Netherlands / Holanda
client / cliente: Amsterdam Geemente, Urban planning department Dep. de Urbanismo del Ayuntamiento de Amsterdam
project site / superficie de la parcela: 1500m2
total area / superficie del edificio: 5.000m2
status / estado: on going / en progreso
ENG
As part of Sluisbuurt Masterplan feasibility study sukunfuku studio developed a second prototype for an adaptable multipurpose building, that could be used in a different plot and serve as a container for varied programs.
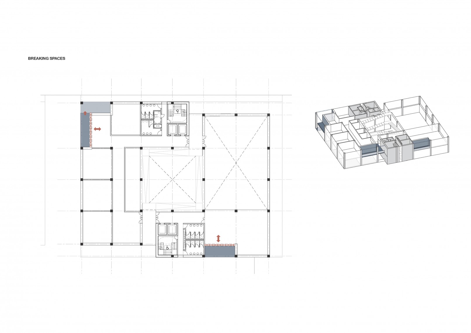
The proposal tries to achieve a design as flexible as possible. The building is split in two equal volumes, with two primary entrances to separate users at pick hours. A central courtyard guarantees daylight to all internal areas and provides an external circulation around the central courtyard connecting every storey.
All servicing is resolved in the central axis, core and services are combined in a block next to the courtyard and the rest of the floor plate is organised in two clear pieces each of them sized 450sqm ( 14x32x7.5m (h)). The resulting space can be used in multiple ways and filled with varied programs, given the spatial flexibility and potential section split. The services block connects both volumes giving the possibility to use each level as part of one only program or with two independent uses. The building can host one only program or even 4 different per floor.
ESP
Dentro del estudio arquitectónico que el ayuntamiento de Amsterdam encargó para el Masterplan de Sluisbuurt, sukunfuku studio ha desarrollado un segundo prototipo para un edifico multifuncional flexible, que podría aplicarse en una parcela alternativa y servir como contenedor de diversas funciones.
La propuesta se centra en desarrollar un edifico público y multifuncional lo mas flexible y adaptable posible. El volumen se divide en dos piezas simétricas, con dos accesos diferentes para posibilitar la segregación de usuarios según programas en horas punta. Un patio central garantiza la iluminación natural a todas las estancias y da acceso exterior a todos los niveles.
Todos los servicios se resuelven en el eje central, circulación e instalaciones se combinan en un núcleo conectado al patio, liberando el resto de la planta para su uso por parte de los distintos programas. Dos piezas rectangulares y diáfanas de 450m2 ( 14x32x7.5m (h)) alojarán las distintas funciones del edifico. La flexibilidad espacial y amplitud de sección posibilitan el uso del espacio de muy diversas maneras, pudiendo subdividirlo tanto en planta como en sección según los requisitos del programa. Además, el núcleo de servicios conecta ambas piezas de manera que estas puedan funcionar en cada planta como elementos independientes o como parte del mismo programa; el edificio podrá ocuparse enteramente con un único programa o hasta 4 usuarios por nivel.

















