Centro del Arte Rupestre (SP)
1er Premio / 1st Prize
situación / location: Puente Viesgo, Cantabria
cliente / client : Consejería de Cultura de Cantabria
superficie de parcela / plot area: 10.000m2
superficie del edificio / total area: 1678m2
Team:
sukunfuku studio, Miguel Huelga + Iria de la Peña
Construction manager: José Manuel Gómez Illa
Structure Engineer: Estática Ingeniería SL
Mechanical Engineer: A6 Ingeniería SL
Collaborators: Mónica Pérez + Arantxa Zabalza
Curtain Design: Akane Moriyama Studio
Contractor: Siec SA 
Photographs: Adrià Goula 
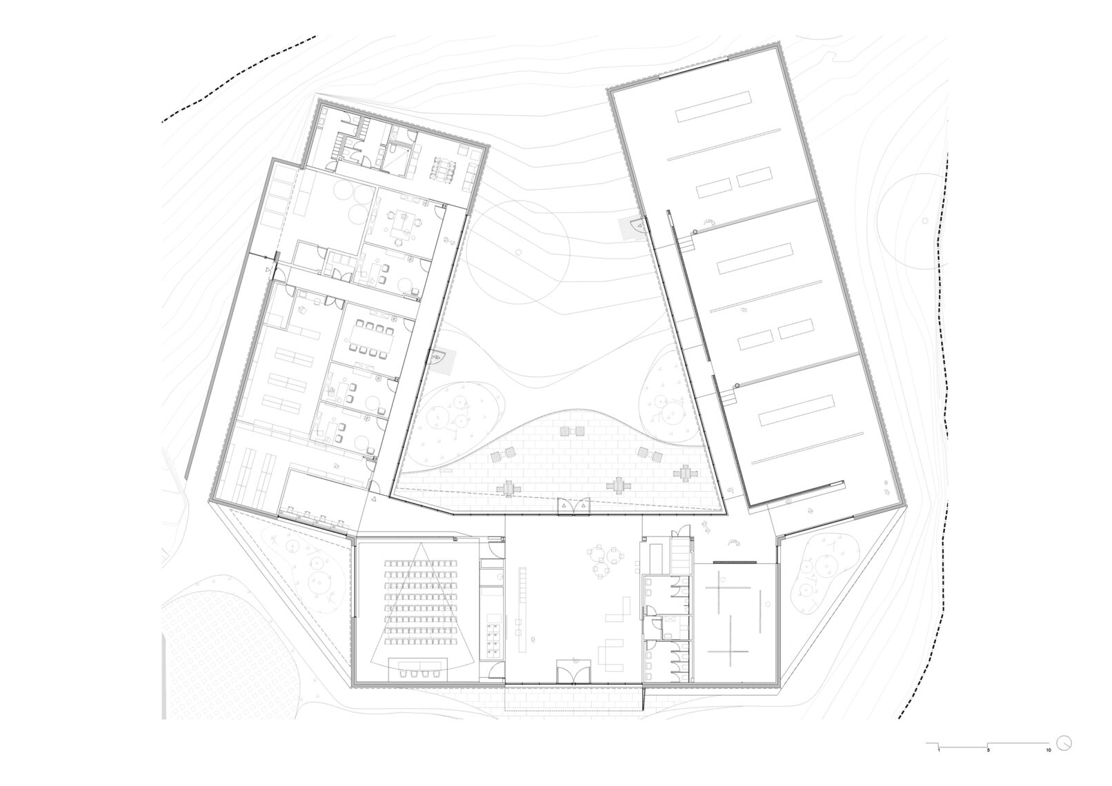
El Centro se sitúa en la ladera del Monte Castillo, dentro del área de influencia de las cuevas que llevan su nombre y rodeado por la carretera que da acceso a las mismas. El programa requería un volumen relativamente grande, en una parcela de orografía compleja e inmerso en un paisaje de gran belleza.
Se agrupan los espacios en tres bloques diferenciados: área de recepción y servicios, zona de exhibiciones y área restringida. Los tres volúmenes se articulan y organizan en torno a un patio central, que distribuye y conecta las diferentes estancias. El volumen resultante, en forma de “C” se enfrenta a la pendiente natural de la parcela, que cierra el edificio creando un “graderío verde”. La montaña pasa así a formar parte del programa, se convierte en protagonista y elemento articulador del edificio, invitando al visitante a salir al exterior y actuando como una extensión al aire libre de las actividades del centro.
El cuerpo principal de acceso se orienta al viario invitando a los visitantes a entrar y sirve como nexo de conexión de los volúmenes de administración y exhibiciones. El resto de espacios se organizan en torno al patio; una banda de circulación perimetral actúa como filtro entre el exterior y el interior, controlando la iluminación natural en la zona de exposiciones y dando privacidad a las oficinas. Los tres bloques programáticos se conectan entre sí por medio de patios de menor espacio, que actuarán como transición entre usos, controlando iluminación, vistas y protección.
Constructivamente el edificio se divide en dos bloques. La parte baja se soluciona con muros de hormigón en las zonas que contienen el terreno, mientras que las fachadas que dan al patio y zona de acceso son principalmente acristaladas. Sobre esta base se apoya la cubierta de piedra caliza, que cose los tres volúmenes entre sí, se pliega transformándose en parte de la fachada y genera en el alzado un contraste cromático, de escala y textura. El edificio se integra y dialoga con el entorno natural que lo rodea, entablando una relación con la topografía y disgregando sus volúmenes para adaptarse al entorno.
 
		    















































