Colonias Escolares (SP)
Ampliación y rehabilitación de Colonias Escolares, Salinas
Extension and restoration of University Colonies, Salinas
información del proyecto / project info :
concurso / competition:
Primer premio / First prize
situación / location : Salinas, Castrillón-Asturias. España / Spain
cliente / client: Universidad de Oviedo / Oviedo University
superficie del edificio existente / existing building : 638m2 + 246m2
superficie de la propuesta / proposal area : 680.86m2
estado / status : en progreso / on going
team:
sukunfuku studio / Miguel Huelga, Iria de la Peña
Z2Arquitectos / Marcos Gómez, Úrsula Díaz
ESP
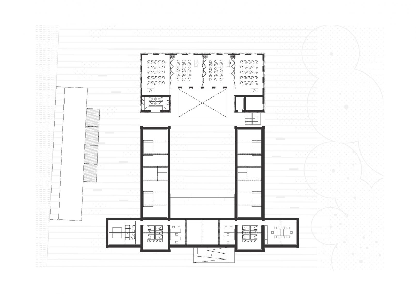
La intervención objeto del presente proyecto, consta de varias actuaciones: La rehabilitación del edificio principal existente, para la recuperación de su uso como residencia y su ampliación mediante un nuevo pabellón social, dedicado a almacén, aulario (modulable) y salón social para recepciones y exposiciones.
La decisión más importante desde el punto de vista proyectual es la colocación del nuevo pabellón social, estratégicamente situado como prolongación del edificio existente. El nuevo edificio se proyecta con una planta en forma de “C”, buscando una relación geométrica y compositiva con la edificación actual. El resultado es una composición general del conjunto compacta y cerrada, que amplía el patio interior y completa el claustro.
La ampliación del nuevo pabellón social se materializa en un cuerpo independiente, próximo al edificio principal, pero no anexo a él. Se resuelve mediante la creación de un volumen con dos niveles. La planta baja se coloca ligeramente por debajo del nivel exterior, garantizando la creación de dos plantas con una adecuada altura interior, pero sin superar externamente la cota de coronación del edificio existente. Para resolver esta diferencia de cota, se proyecta un graderío exterior, entendido como una prolongación del patio. Para completar la idea, la circulación en el nuevo pabellón se realiza a través de una pasarela exterior, que sirve de colchón entre los dos edificios, potencia las visuales y favorece la relación con el patio.
El patio generado como resultado de la distribución en planta, se entiende como una extensión del programa, y tendrá un uso privado para los residentes. En este espacio exterior se realizarán todo tipo de actividades al aire libre propias del espíritu de las colonias, así como otras actividades lúdicas o culturales, y servirá también para articular la circulación entre las dos edificaciones
 
		    





















