Conservatory of Music & Dance in Torrelavega (SP)
2º Premio. Concurso de ideas / 2nd prize. Competition
situación / location: Torrelavega, Cantabria
superficie construida / total area: 10.810 m2
cgi´s: Giuseppe Bonavita / sukunfuku studio
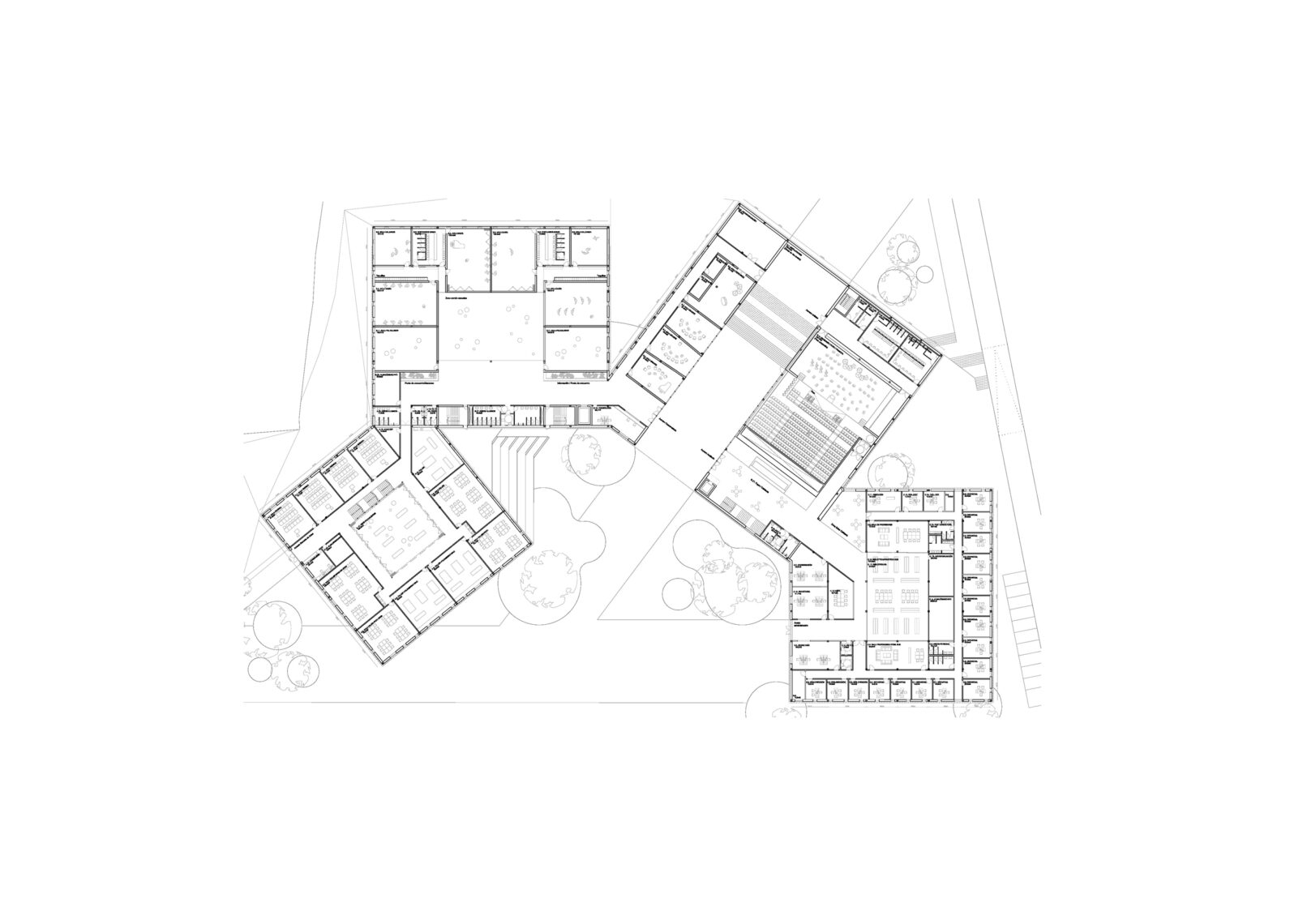
La parcela objeto de proyecto forma parte del plan parcial El Valle, concebido para la ordenación de una zona de crecimiento residencial de la ciudad, que se suma al nuevo modelo urbano compacto de Torrelavega.
El nuevo Conjunto Educativo, que agrupa en la misma parcela tres disciplinas artísticas: Conservatorio de Música y Danza y Escuela de Arte, tiene un papel fundamental como dotación a nivel territorial, pero también como elemento vertebrador del plan parcial, por su localización en el cruce de los nuevos bulevares, zona prevista para agrupar el grueso de los servicios y dotaciones del nuevo sector y con un carácter más urbano dentro del mismo.
El nuevo centro trata por tanto de desligarse del contexto actual, un vacío urbano con escasas edificaciones, y se centra en su papel dentro del nuevo plan. Se busca crear un conjunto con presencia urbana, capaz de atraer y generar actividad pero con una escala adecuada a su entorno, caracterizado por los desarrollos residenciales de media densidad de las nuevas parcelas previstas, pero también dialogando con el carácter más disperso de las zonas limítrofes que quedan fuera del mismo y sin olvidar los elementos naturales existentes en la zona, conjuntos de masas arbóreas y la silueta del monte Dobra, referente del barrio y la ciudad.
Los distintos volúmenes se dimensionan y articulan buscando el funcionamiento óptimo del conjunto, pero también el aprovechamiento de la parcela y la relación del edificio y espacio público, con su entorno.


















