Legado de ultramar
Rehabilitación de casa de indianos
A very special project in the heart of Puente San Miguel, close to the railway station, the church and the river. This centenary casa de indianos, once owned by a local doctor, stands embedded in the urban fabric while hiding an exceptional private west garden — almost like a secret garden waiting to be rediscovered.
The challenge was clear: preserve as much as possible.
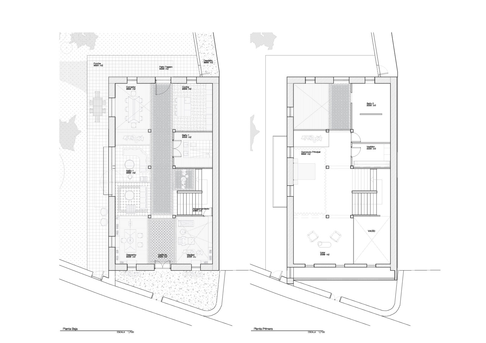
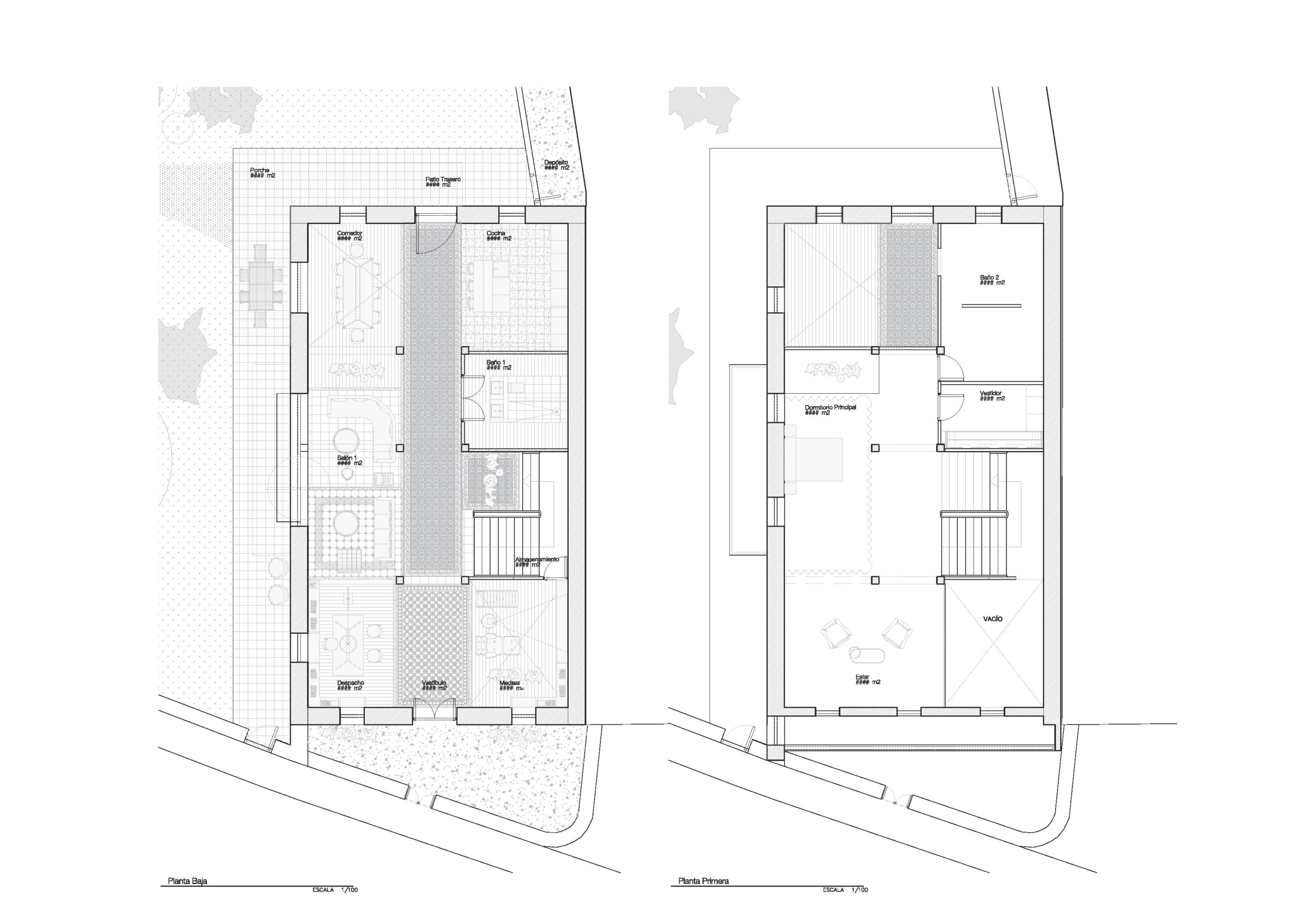
The original program was limited in elements but generous in space. Our task was to carefully insert a photography studio at the top level, a music studio for the couple, and a bedroom for their young son — all while maximizing spatial continuity and light.
The staircase became the core of the intervention. Visible from multiple rooms upon entering, it connects multifunctional living areas with a gallery space for photographic exhibitions. The upper levels unfold across split heights, where creative studios blend with domestic life in a vertical sequence of interconnected spaces.
Rather than transforming, we chose to reveal. Existing materials were exposed wherever possible, and the structure was discreetly reinforced with delicate steel insertions. Pivoting windows became part of the project’s identity, framing views and enhancing cross-ventilation.
The clients’ contemporary furniture collection found its place within the historic shell, creating a dialogue between vernacular architecture and contemporary living. The west garden was opened up, enhancing its mysterious character. Even the small former caretaker’s house was reimagined as a garage, completing the ensemble.
A project about balance — memory and creation, preservation and transformation, heritage and everyday life.



















