Neruca house (SP)
Vivienda unifamiliar en Bezana, Cantabria
encargo / commision: vivienda unifamiliar / housing
situación / location : Bezana, Cantabria
cliente / client : privado / private
superficie / area: 214 m2
aparejador / c. manager: David González Jorrín
construcción / contractor: Cobo Mantecón
fotografías / photographs: Jorge Allende
«Neruca» es una variedad de uva lebaniega originaria de Cantabria que da nombre al proyecto, dada su envolvente de color negro antracita.
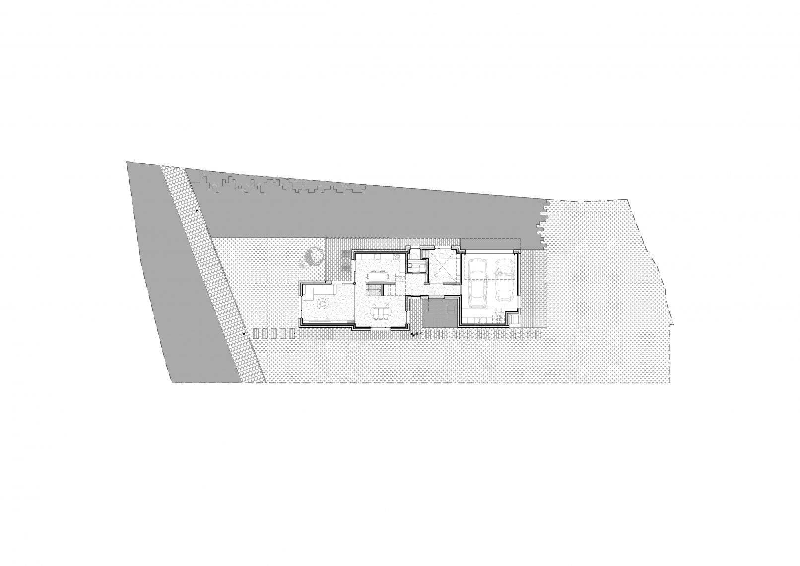
La vivienda se sitúa en una parcela estrecha, con dos fachadas principales, la este y oeste, enfrentadas a las parcelas colindantes y muy próximas a otras edificaciones, y sólo una pequeña poporción de frente a viario público con orientación sur.
Esto lleva a diseñar una vivienda introvertida, donde se recurre a la creación de patios semi-interiores para maximizar la relación con el entorno. Estos patios funcionan como filtro entre la vivienda y su entorno, son espacios de transición, que protegen y dan privacidad a las distintas estancias. Al mismo tiempo que aumentan las posibilidades de abrir huecos al exterior, favoreciendo la iluminación natural y el soleamiento interno.
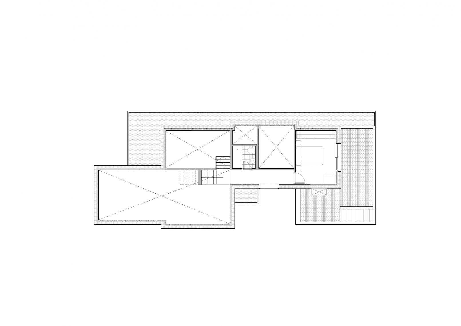
La superficie de la parcela exige una distribución en dos plantas, para poder cubrir las necesidades programáticas. Para reducir el impacto exterior del volumen, en lugar de recurrir a la habitual distribución en dos plantas, se crea un nivel intermedio, lo que permite escalonar los diferentes volúmenes y suavizar su impacto sobre la propia parcela y su entorno inmediato.



































