encargo / commision: Reforma interior
situación / location: Gijón, Asturias
cliente / client: Privado / private
superficie / area: 66.5 m2
fotografías / photographs: Jorge Allende
Reforma de apartamento / Apartment Refurbishment
encargo / commision: Reforma interior
situación / location: Gijón, Asturias
cliente / client: Privado / private
superficie / area: 66.5 m2
fotografías / photographs: Jorge Allende
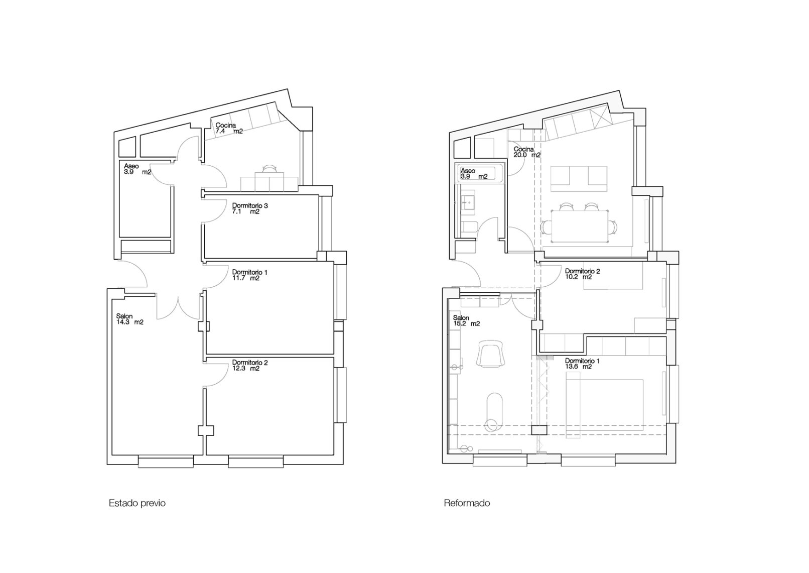
La reforma se ubica en un edificio de los años 70 en el centro de Gijón. El estado previo se caracterizaba por una distribución tradicional, con 3 dormitorios pese a sus menos de 67 metros útiles. Frente a esta organización altamente compartimentada y con espacios infrautilizados se apuesta por una distribución diáfana, con menos particiones y estancias que pueden cambiar de uso según la hora del día.
La propuesta pretende revalorizar el espacio y optimizar sus posibilidades de uso, pero siempre manteniendo la esencia del proyecto original. Se mantiene por tanto la posición de las estancias y se eliminan particiones interiores y zonas de distribución, con el fin de ampliar y conectar visualmente los espacios. Desaparece el pasillo de distribución y se amplía la cocina con un espacio de comedor, esto permite mejorar la relación entre cocina y salón, que pese a estar en esquinas opuestas de la vivienda quedan ahora relacionadas visualmente.
El dormitorio principal, mantiene su acceso a través del salón, pero se convierte en un espacio anexo a este. El tabique original se remplaza por un panel móvil lo que permite mantener ambas estancias unidas durante el día. Un mueble diseñado a medida hace las funciones de cabecero por un lado y aparador del salón por el otro, escondiendo de la vista la cama y permitiendo así difuminar el límite entre los dos espacios. Durante el día el salón invade el dormitorio y por la noche cada espacio recupera su uso original.
Los acabados elegidos responden de nuevo a la intención de mantener la esencia de lo que fue el proyecto inicial. Se mantienen los pavimentos que se han conservado en mejor estado, el parquet en espiga de castaño de los dormitorios y el terrazo del salón. En el resto de zonas se remplaza el acabado por un gres porcelánico en tres tonos diferentes, relacionados con la coloración del terrazo preexistente. Estos tres tonos se aplican a cada uno de los tres espacios a cubrir: acceso, aseo y cocina-comedor y se mezclan entre sí de manera puntual, haciendo un guiño al pavimento tradicional al que hacen referencia. El mismo acabado de suelos se extiende a modo de rodapié en las paredes, donde el color de los azulejos se mezcla con el blanco de los paramentos.
La estructura de hormigón, con una gran presencia en el espacio, se deja vista, y el resto de superficies se mantienen con el acabado blanco previo.