Office refurbishment (SP)
Interior design and refurbishment of an office
Reforma interior de un espacio de oficinas
project info / información del proyecto:
commission / encargo: interior design / diseño de interiores
client / cliente: Enxendra Technologies
location / situación: A Coruña, Spain / España
area / área: 91.13 m2
status/estado: on going / en progreso
ENG
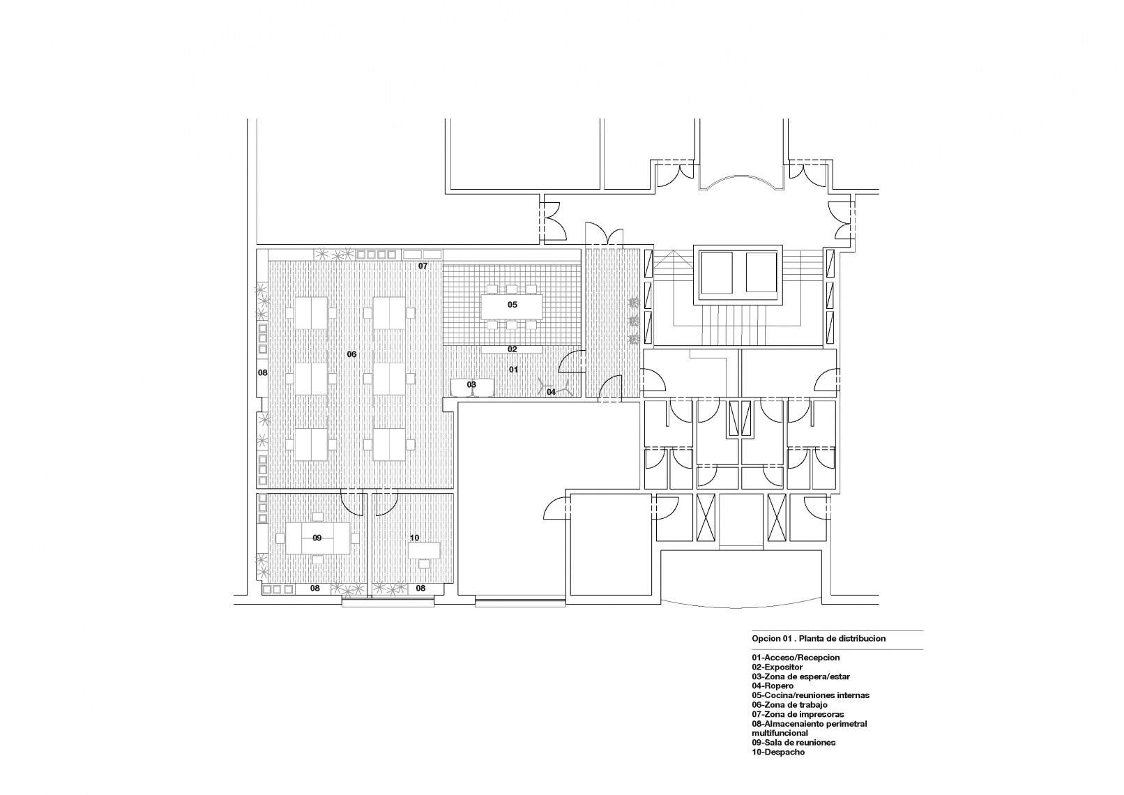
The commission consisted on the refurbishment of an office space, maintaining the existing internal distribution, just modifying the arrangement of furniture and finishes.
The proposal organises the space in two zones: A public area next to the entrance with the most social environment and a more private working place far from the access. Apart from the existing partitions the rest of the space has an open-plan layout, and the division between different areas is indicated by the uses of material finishes and furniture, creating a flexible space and maximising the use of each zone.The entrance area is divided in a reception space, immediately next to the entrance and the canteen. Both spaces can be used in a dual way; the reception is not only the place to welcome visitors but also where employees can take a break, rest in the sofas, read a magazine or have a coffee. The canteen can be used as an informal meeting room as well.
The material palette proposed combines existing and new elements to improve the material combination of the space while minimizing costs. The main limitation of the existing space is the lack of daylight, magnified by the extended used of timber-like finishes and furniture. The new materials are chosen to create a brighter atmosphere, walls and interior partitions are painted in white as well as all the existing fixed furniture. The perimeter, currently used as storage is transformed into a continuous showcase, enclosing the current selves to help organising and using the top as a multipurpose surface to exhibit magazines, books, plants,… This datum runs along the perimeter of the room and is transformed in a worktop when meeting the canteen. The kitchen space is separated from the rest by using tiles as a floor finish, treating the material as a folded rug the same tiles are placed in the wall to relate both surfaces and create a casual atmosphere.
ESP
El encargo consistía en reformar un espacio destinado a oficina manteniendo las particiones interiores existentes y modificando tan solo la distribución interior por medio de acabados y mobiliario.
Se propone dividir el espacio en una zona de uso más público situada junto a la entrada, dejando la zona de trabajo en la parte más alejada. El acceso se divide a su vez en un área de recepción inmediata a la entrada y la cantina. Ambos espacios pueden ser usados de manera ambivalente. El área de recepción podrá ser utilizada tanto para recibir y atender a visitantes como por parte de los trabajadores, como zona de descanso o lectura. En paralelo se sitúa la cocina y cantina, con una amplia mesa y ligeramente separada del área de trabajo puede usarse no solo durante la hora del almuerzo sino también para pequeñas reuniones internas.
La paleta de materiales propuesta combina elementos existentes con otros nuevos. Se eligen materiales que ayuden a dar luminosidad al espacio. La zona de trabajo se mantiene como un espacio único, con una banda de almacenamiento perimetral. Este elemento, con un gran impacto visual en el espacio ayuda a dar carácter y funcionalidad, se diseña como un expositor continuo en torno al espacio de trabajo, la superficie horizontal se convierte en el elemento protagonista como una banda continua multiusos, donde colocar plantas, libros, revistas,...
 
		    





