Tampere Art Museum (FN)
International design competition on the Tampere Art Museum area and Pyynikintori square
Concurso internacional de diseño del Museo de Arte Contemporáneo de Tampere y plaza Pyynikintori
project info / información del proyecto:
project / proyecto: competition / concurso
location / situación: Tampere, Finland / Finlandia
client / cliente: municipality of Tampere /ayuntamiento de Tampere
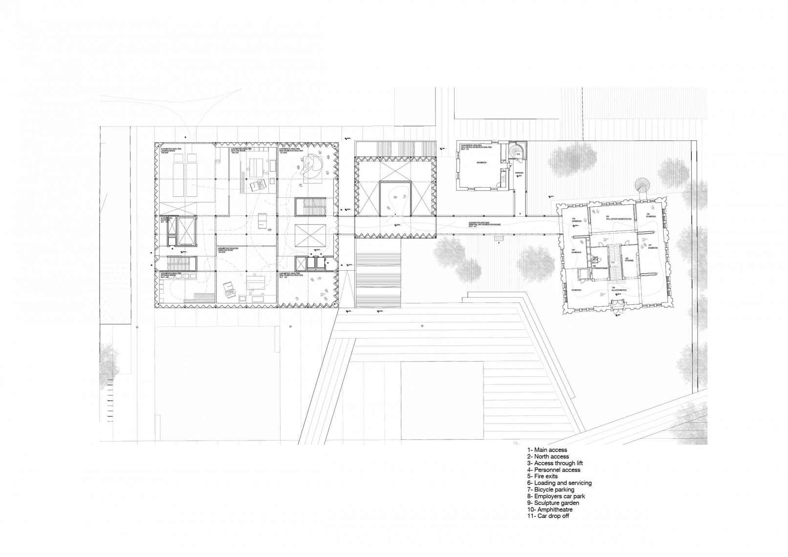
project site / superficie de parcela: 14.060 m2
total area / superficie del edificio: 5.887 m2
team:
sukunfuku studio / Architecture Lead. Miguel Huelga, Iria de la Peña
az landscape / Urban planning-landscape dsgn. Arantxa Zabalza
blank exhibitions / Museography – scenography. Anastasia Ulin, Inma Razola
DXOXC / Branding – wayfinding. Steven David Roberts
ENG
The proposal for the new museum suggests treating the current building and the extension as two equal entities, moving the new access to an independent volume between them. A neutral volume acting as entrance, connection and articulation between old and new volumes.
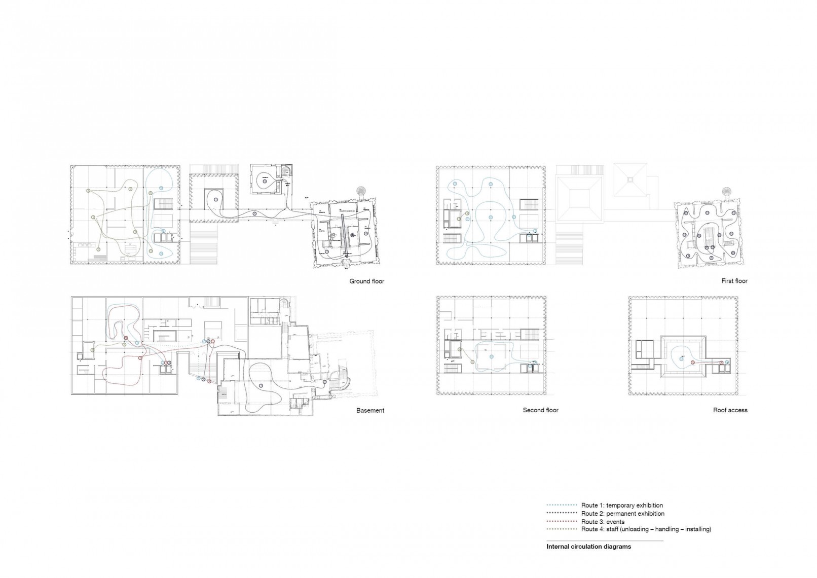
On the outside a generous staircase leads visitors towards the foyer, a double height space with zenith lighting coming from the perimeter. From this central space, directly connected to all public and social programs, visitors can access both the permanent exhibitions in the existing building or the temporary ones on the extension.
On the upper floor a bridge above the foyer connects again both buildings, creating a loop in the exhibition tour. This link becomes not only a circulation space but also part of the exhibition experience.






























