Thermal Center in Bande (SP)
Concurso de ideas de un centro termal en Bande
situación/location: Bande, Galicia
superficie construida / total area: 530 m2
El proyecto se ubica en un entorno excepcional, Porto Quintela, en el municipio de Bande, Ourense. Una zona con presencia de aguas termales, disfrutadas desde la época Romana. Muy próxima al área de intervención se encuentran los yacimientos de “Aquis Querquennnis”. Todos estos condicionantes conforman las pautas para un diseño que se mimetize con su entorno, y sea extremadamente respetuoso con el mismo. Se busca un marcado carácter de atemporalidad.
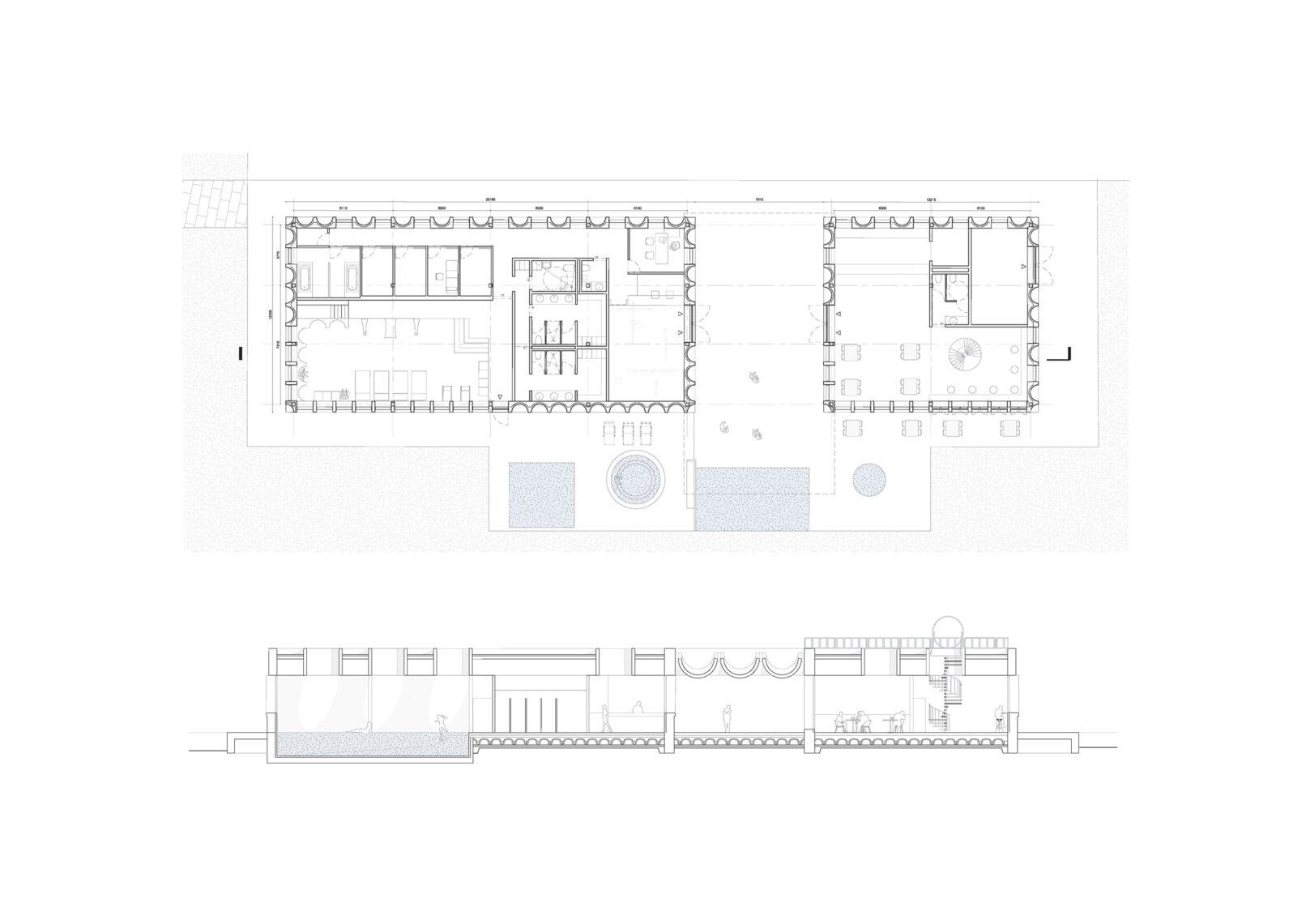
La parcela de proyecto posee gran abundacia de vegetación y tiene la mayor parte de su superficie dentro de una zona potencialmente inundable. Si bien el desnivel del terreno es muy ligero, la pendiente se incrementa en su límite noreste, el más alejado del embalse. Por este motivo, la propuesta se organiza en una pastilla rectangular, de proporción alargada y localizada junto al límite de la zona inundable, lo que permite mantenerse en la zona seca sin necesidad de realizar excesivos movimientos de tierra.
El volumen inicial se divide en dos piezas, una con aquellas funciones asociadas al uso termal y otra con los espacios más públicos, como la cafetería. Las dos piezas se separan para crear un espacio intermedio de transición.
Esto favorece la flexibilidad para el uso del programa, pudiéndose usar el volumen de servicios de manera independiente al Centro Termal. El acceso al conjunto se realiza a través de este espacio, con un carácter marcadamente contemplativo. El edificio enmarca el paisaje e invita a entrar a los visitantes. En japonés este concepto espacial de transición se conoce como “engawa”.
Una gran pérgola “en voladizo” a modo de marquesina, con grandes bóvedas de Hormigón prefafricado y “suspendidas”, separadas ligeramente para tamizar la luz, recibe y protege al visitante y le da la bienvenida. Su estructura a base de semicilindros, procedente de la construcción de “obra civil”, permite recoger el agua de lluvia y la deja caer a una piscina exterior, de la que pueden hacer uso todos los visitantes, a la vez que se asegura la viabilidad constructiva al tratarse de elementos ecoómicos y de fácil montaje.
La propuesta constructiva del proyecto surge de la marcada presencia del arco y la bóveda en el yacimiento romano de “Aquis Querquennis”, y por supuesto, también presentes en el origen histórico de los baños termales, que inspiran profundamente al desarrollo constructivo de la propuesta.
De una construcción tradicional pasamos a un concepto totalmente distinto, la utilización de elementos prefabricados como sistema de encofrado perdido para lograr geometrías circulares y cilíndricas. Para conseguir su viavilidad económica, y constructiva, se plantea la utilización de tubos armados de hormigón prefabricado de grandes dimensiones, para la ejecución de elementos de fachada, forjados y cubierta de presencia habitual en infraestructuras.







