La Serna
Housing Complex, Guest House & Photo Studio in La Serna, Cantabria
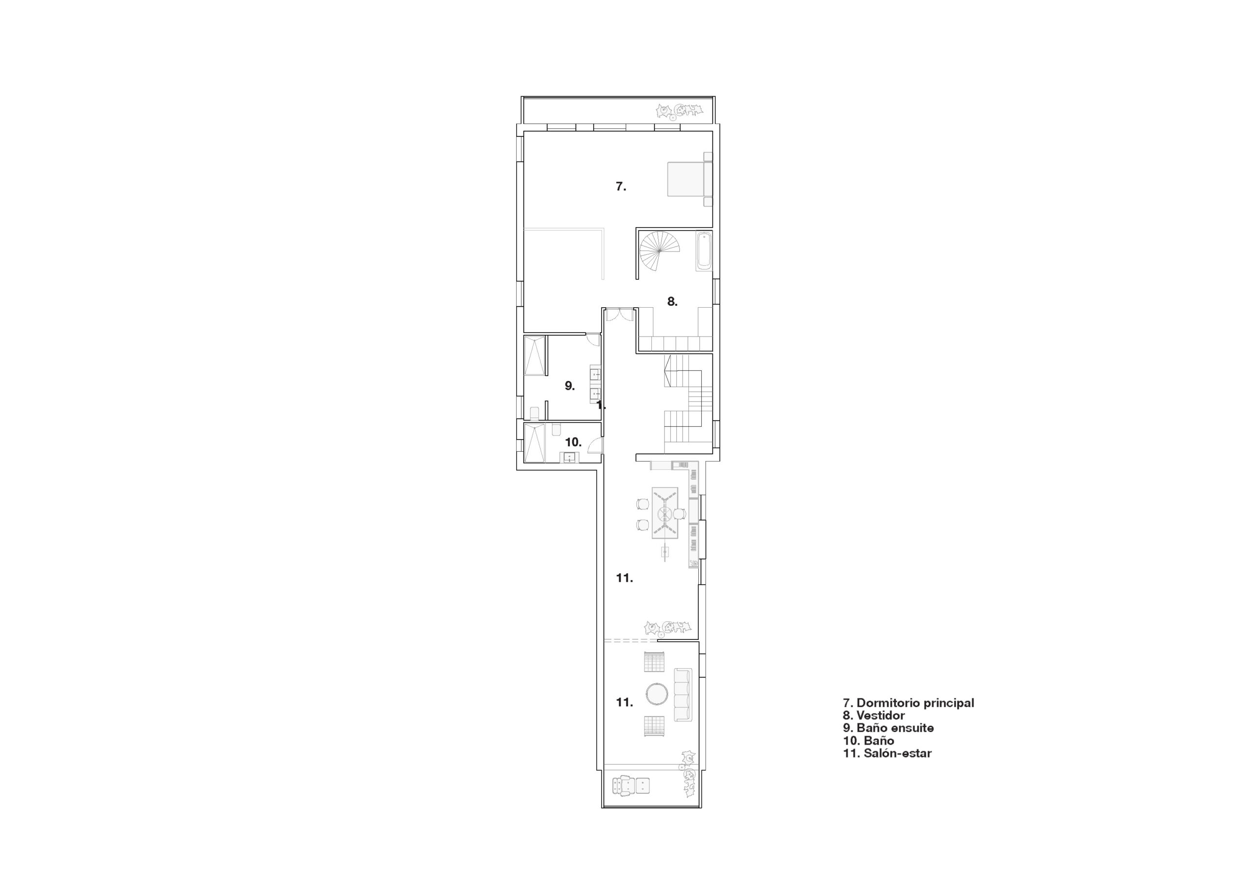
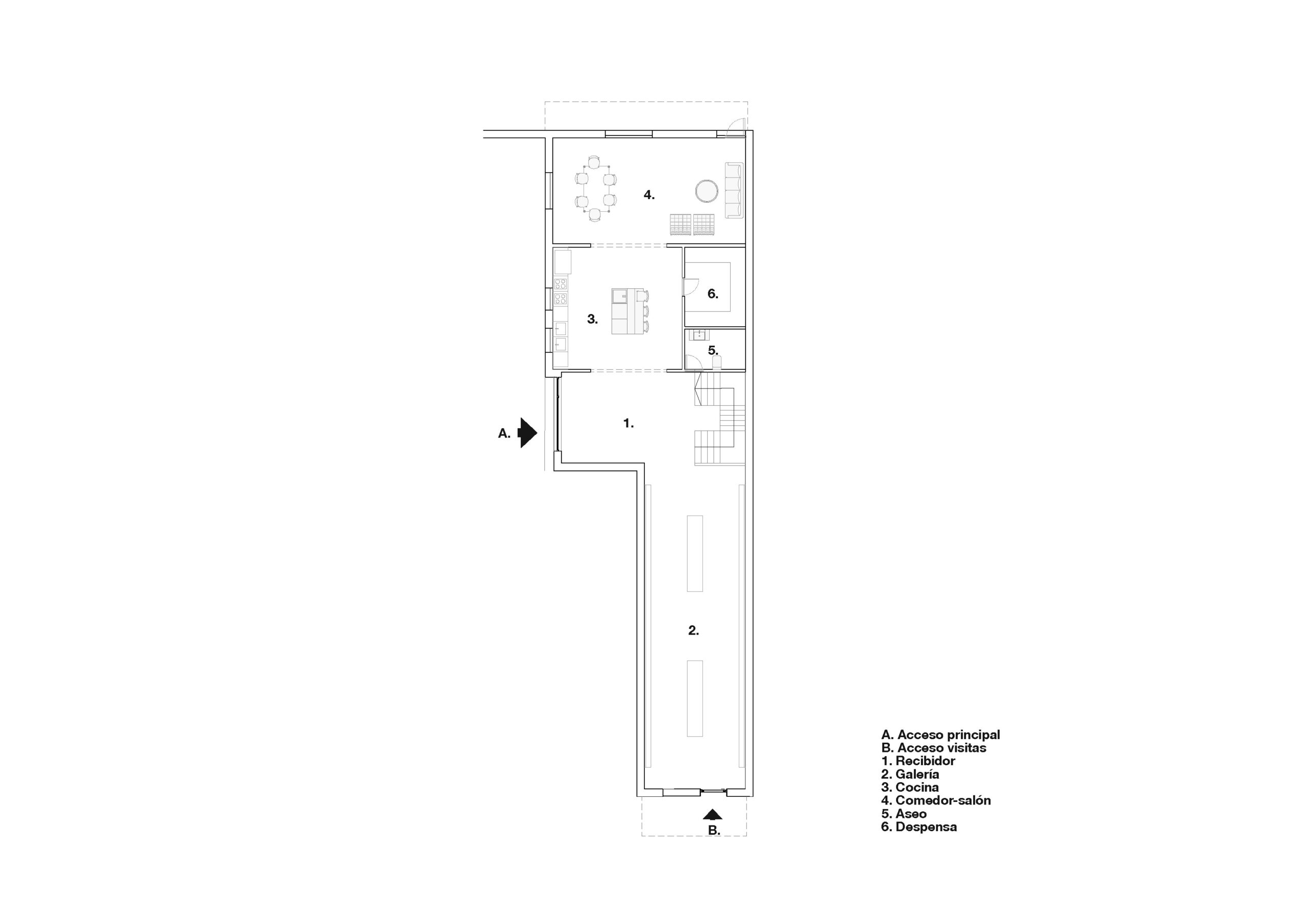
We’re working on the rehabilitation of a unique rural complex organized around a large central courtyard. Instead of tearing down an old load-bearing stone wall that once divided this courtyard from the rear garden, we’re choosing to inhabit it — opening a generous passage through it, supported by a large glulam beam, and transforming it into a thick, inhabited threshold. A continuous bench and a long table will anchor this gesture, turning it into a space of transition and gathering — a new heart between garden and patio.
This is a project of architectural acupuncture — small, precise interventions that bring light, flexibility, and contemporary use into a traditional and vernacular setting.
Thanks to our visionary clients, we are able to explore open-plan living with minimal partitions, generous shared spaces, and strong, characterful furniture pieces soon to be revealed.
More than conventional architecture, this feels closer to a site-specific installation — a layered process enriched by collaboration, context, and care.














