Muria House (SP)
This is project for a house in Atilán, Villaviciosa, shaped by all the urban and material constraints of its setting: the mandatory use of traditional curved clay roof tiles, limited finishes, restricted metal frames, and a very limited palette for both façades and openings.
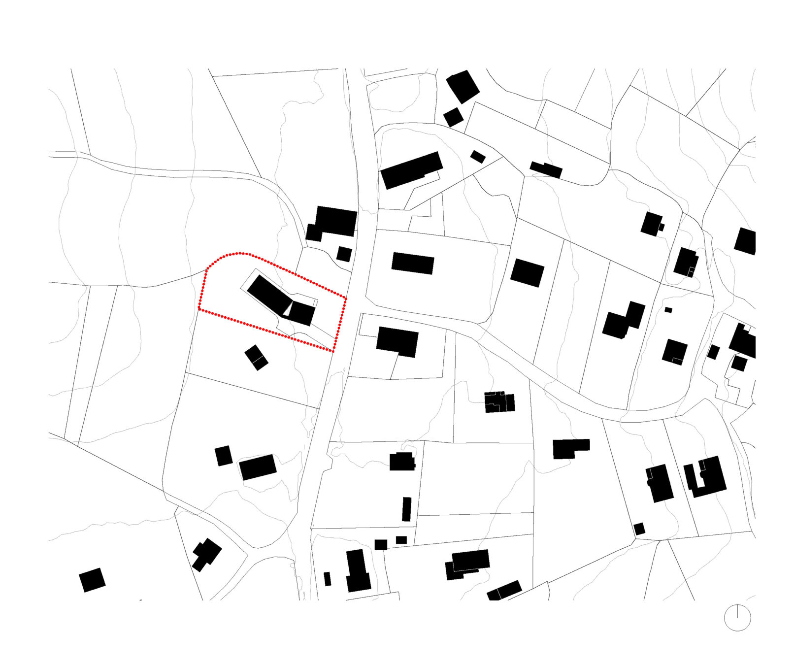
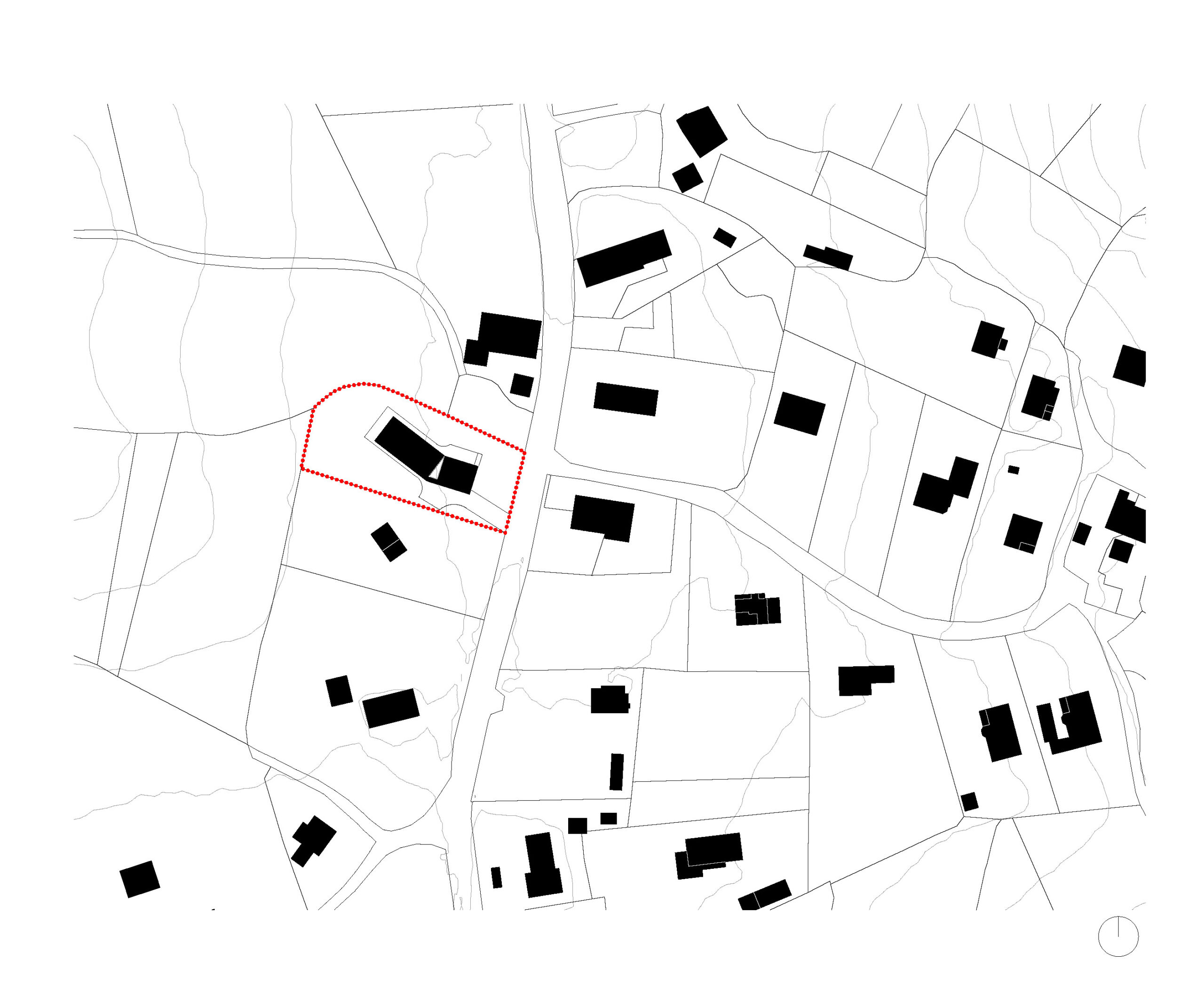
These conditions pushed us to look carefully at the surrounding architecture. Directly opposite the site, on this remarkably flat landscape, stood a rural structure defined by a long trapezoidal stone wall that sheltered the orchard and extended the logic of a granary. We wanted to reinterpret that gesture, creating a protected northern garden — a sheltered outdoor space that would also incorporate a ceramic workshop.
“Muria” in Asturian mainly means wall, partition, or enclosure wall, and it can also refer to a stone boundary wall.
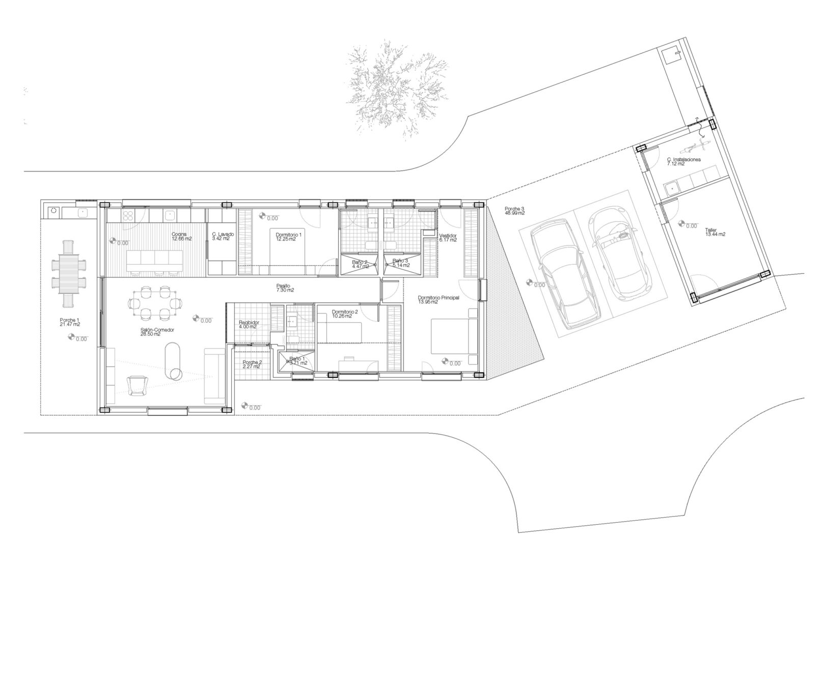
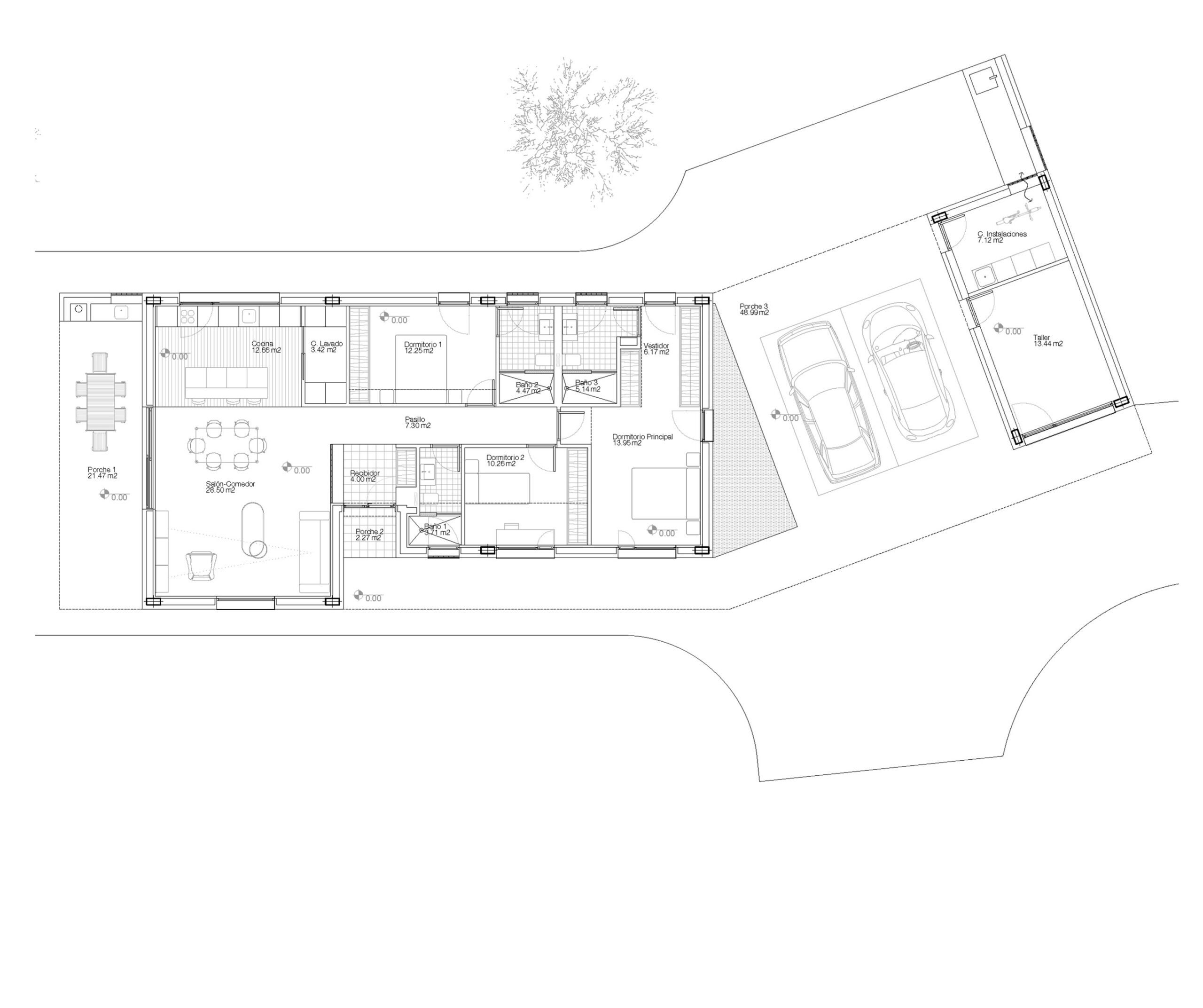
The house is broken into two volumes that pivot around an axis, opening themselves towards the views while carefully avoiding direct confrontation with the neighboring buildings. Between them, an impluvium emerges, later bringing natural light deep into the main bedroom. The structure, is resolved through a continuous double-pitched slab that will remain exposed on the interior, maximizing the continuity between inside and outside.
Because the client has a strong connection to ceramics and wanted a workshop of their own, we brought that material language into the architecture itself. The façade incorporates glazed ceramic latticework with circular openings, creating privacy, filtered light and shadow. This ceramic expression continues into the interior, becoming a more grounded plinth on the elevation most exposed to the winds, and then reappears indoors in a different chromatic register.












