Sluisbuurt Multipurpose (NL)
Feasibility study for a flexible building
Estudio de viabilidad para un edificio flexible
project info / información del proyecto:
comission / encargo:
Feasibility study / Estudio arquitectónico
location / situación: Sluisbuurt Masterplan Amsterdam. Netherlands / Holanda
client / cliente: Amsterdam Geemente, Urban planning department Dep. de Urbanismo del Ayuntamiento de Amsterdam
project site / superficie de la parcela: 1500m2
total area / superficie del edificio: 5.000m2
status / estado: on going / en progreso
ENG
Sukunfuku studio developed a feasibility study commissioned by Amsterdam cityhall for a Multifunctional public building in Sluisbuurt Masterplan, intended to host a School complex combined with working and community facilities. This study is also an attempt to analyse the role of similar buildings and their capability of adjustment to future functions.
With an estimated area of 5.000m2, the proposal suggests an evolution towards a more flexible and sustainable construction model, able to respond not only to current needs but also adaptable to future program changes and living and working trends.
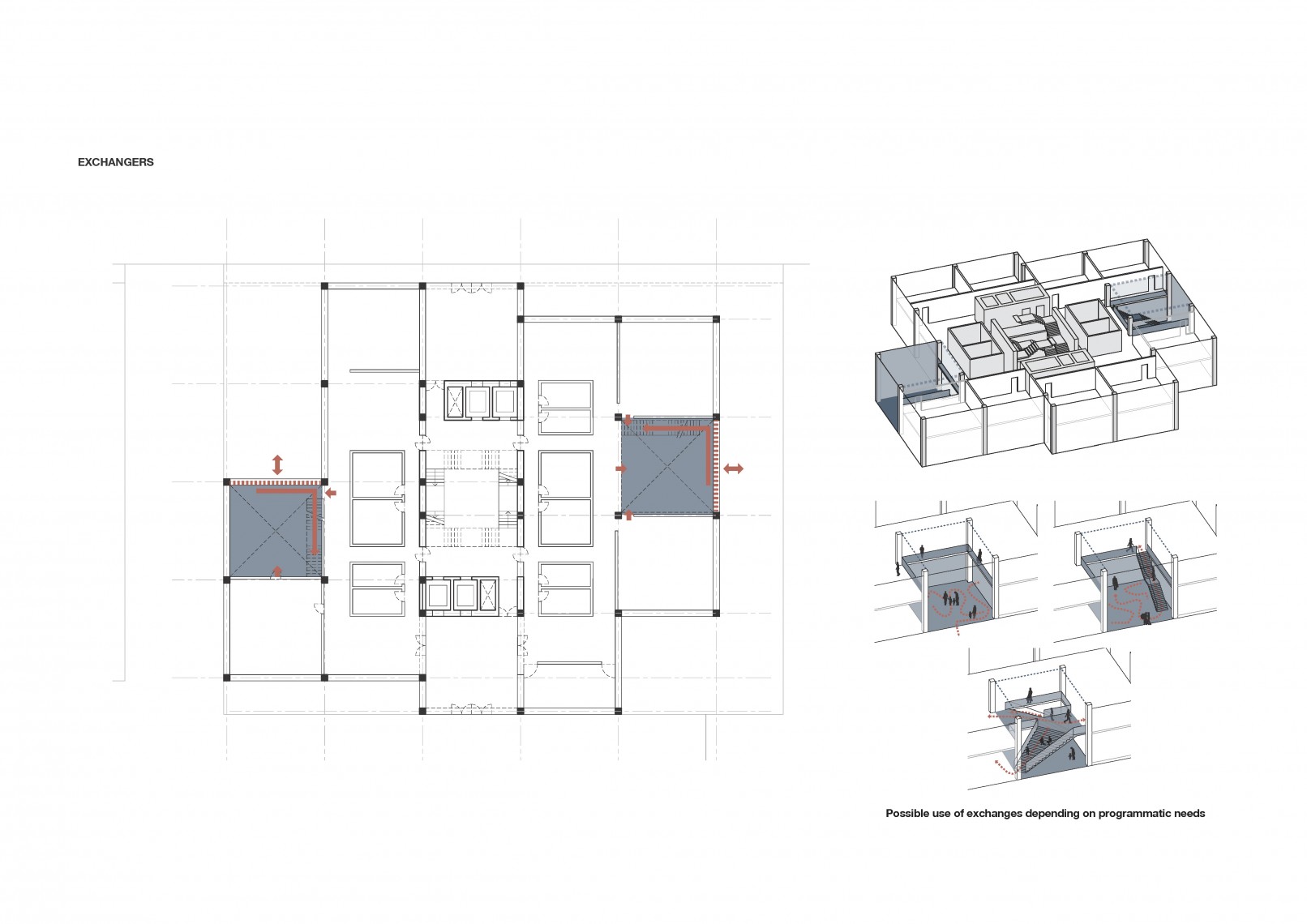
Is difficult to predict the way the new neighbourhood will grow and continue to develop in the coming years and which needs will come up, therefore, the proposal is designed not only to respond to the intended program but also with the capability to reconfigure its distribution, creating a flexible model designed to host programs with varied spatial requirements, foreseeing future needs.
This spatial flexibility and the transformation capability of the building allows for a progressive introduction of the school program, while the neighbourhood is still growing, combining the school complex and working spaces with additional community facilities. In the future, the building could be recycled, once the school complex is no longer needed, adjusting the internal distribution to future uses with different spatial needs from the originals, such as health centre, exhibition or productive spaces, or even residential functions.
ESP
Por encargo del Ayuntamiento de Amsterdam sukunfuku studio realizó un estudio arquitectónico para un edificio multifuncional en el Masterplan de Sluisbuurt. El edificio albergará una escuela primaria y guardería, junto con instalaciones deportivas y oficinas. Es además un ejercicio de investigación para analizar las posibilidades de edificios similares y su capacidad para adaptarse a futuros cambios en su uso.
Con un área total estimada de 5.000m2, el estudio arquitectónico pretende demostrar la viabilidad del programa planteado y al mismo tiempo proponer un modelo de edificio público más flexible y sostenible, capaz de adaptarse a diferentes programas y cambios en el tiempo.
Como parte de las primeras fases del masterplan el edificio deberá prepararse para un cambio progresivo en las necesidades del vecindario y el diseño de la propuesta se centra en responder de manera eficaz y sostenible a estos cambios. La combinación del programa educativo y de oficinas generará a su alrededor una serie de usos adicionales y servicios a la comunidad que crecerán o se reducirán en función de las necesidades en cada momento. El diseño del edificio permite además que en un futuro se pueda llevar a cabo un reciclaje funcional del mismo, en caso de que el uso como escuela quede obsoleto, adaptándose para alojar nuevas funciones necesarias para el vecindario como un centro de salud, espacio expositivo o incluso viviendas.
 
		    



























